Residência Alphaville
Brasília – DF, Brasil
2023
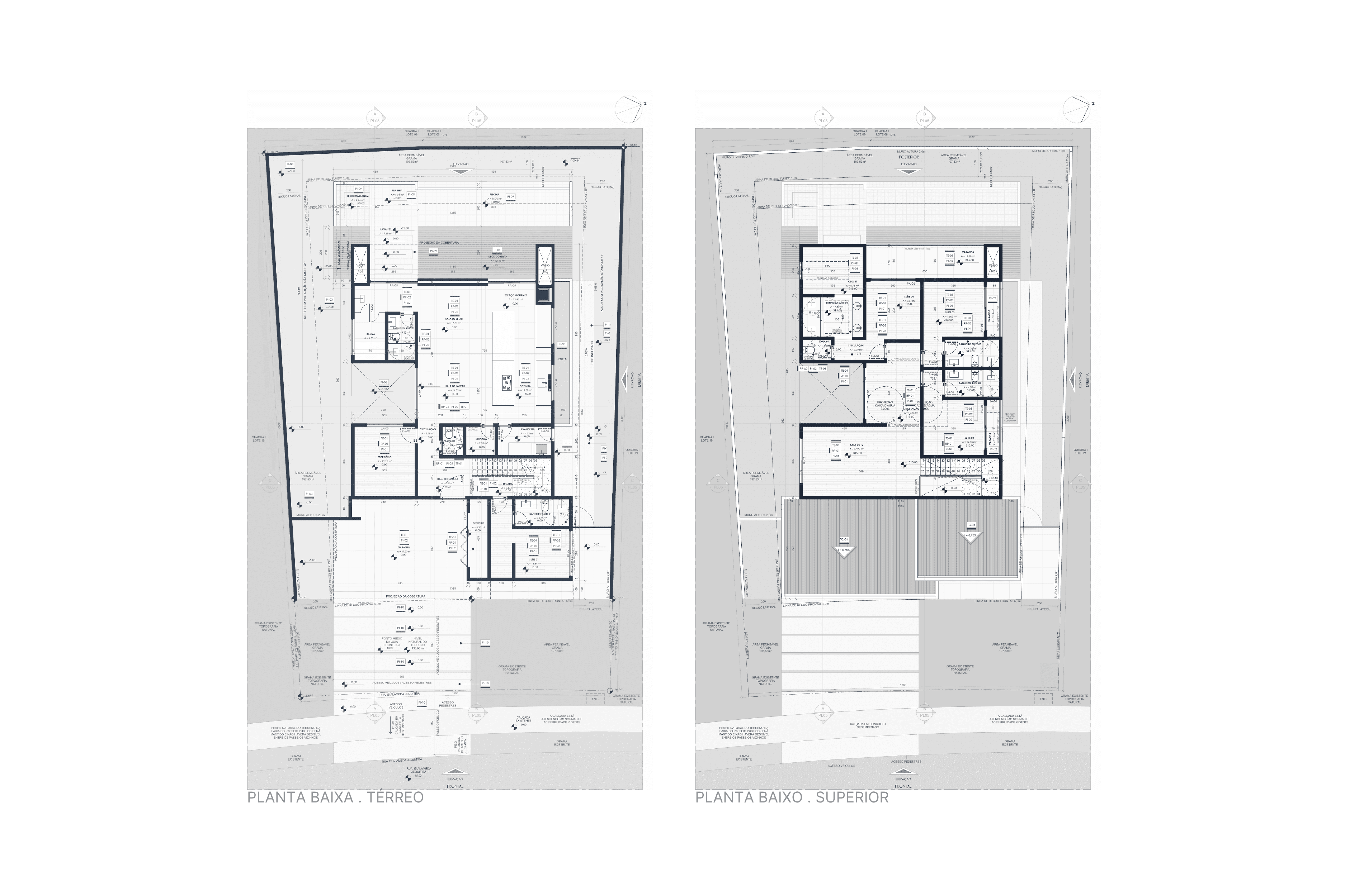
Projeto arquitetônico localizado no condomínio Alphaville Brasília. O trabalho envolveu concepção arquitetônica, modelagem BIM, produção de desenhos técnicos e aprovação junto aos órgãos competentes para execução da obra.
A proposta prioriza volumetria limpa, integração entre ambientes e adaptação ao relevo natural do terreno, resultando em uma composição contemporânea e funcional.
Escopo:
Concepção Arquitetônica | Modelagem BIM (Arquitetura) | Documentação Técnica | Aprovação
Softwares: Revit






Residência Alphaville
Brasília – DF, Brasil
2023
Projeto arquitetônico localizado no condomínio Alphaville Brasília. O trabalho envolveu concepção arquitetônica, modelagem BIM, produção de desenhos técnicos e aprovação junto aos órgãos competentes para execução da obra.
A proposta prioriza volumetria limpa, integração entre ambientes e adaptação ao relevo natural do terreno, resultando em uma composição contemporânea e funcional.
Escopo:
Concepção Arquitetônica | Modelagem BIM (Arquitetura) | Documentação Técnica | Aprovação
Softwares: Revit






Residência Alphaville
Brasília – DF, Brasil
2023
Projeto arquitetônico localizado no condomínio Alphaville Brasília. O trabalho envolveu concepção arquitetônica, modelagem BIM, produção de desenhos técnicos e aprovação junto aos órgãos competentes para execução da obra.
A proposta prioriza volumetria limpa, integração entre ambientes e adaptação ao relevo natural do terreno, resultando em uma composição contemporânea e funcional.
Escopo:
Concepção Arquitetônica | Modelagem BIM (Arquitetura) | Documentação Técnica | Aprovação
Softwares: Revit





