IML Brasília
Brasília – DF, Brasil
2024
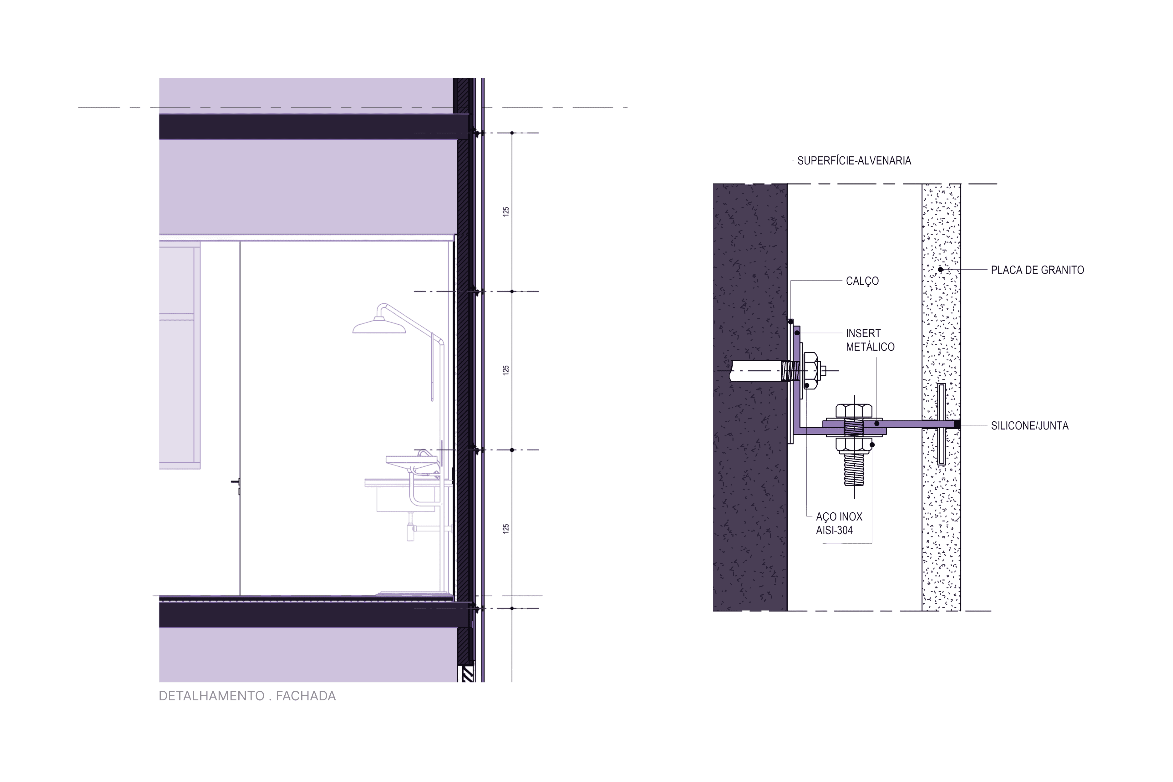
Desenvolvimento técnico em modelagem BIM, documentação executiva e compatibilização do projeto do Instituto de Medicina Legal de Brasília, em colaboração com a empresa Topocart.
A concepção arquitetônica foi elaborada pela equipe do órgão público, cabendo à modelagem BIM garantir precisão técnica, integração interdisciplinar e eficiência na coordenação dos projetos complementares.
Escopo:
Modelagem BIM (Arquitetura) | Documentação Técnica | Compatibilização
Softwares: Revit






IML Brasília
Brasília – DF, Brasil
2024
Desenvolvimento técnico em modelagem BIM, documentação executiva e compatibilização do projeto do Instituto de Medicina Legal de Brasília, em colaboração com a empresa Topocart.
A concepção arquitetônica foi elaborada pela equipe do órgão público, cabendo à modelagem BIM garantir precisão técnica, integração interdisciplinar e eficiência na coordenação dos projetos complementares.
Escopo:
Modelagem BIM (Arquitetura) | Documentação Técnica | Compatibilização
Softwares: Revit






IML Brasília
Brasília – DF, Brasil
2024
Desenvolvimento técnico em modelagem BIM, documentação executiva e compatibilização do projeto do Instituto de Medicina Legal de Brasília, em colaboração com a empresa Topocart.
A concepção arquitetônica foi elaborada pela equipe do órgão público, cabendo à modelagem BIM garantir precisão técnica, integração interdisciplinar e eficiência na coordenação dos projetos complementares.
Escopo:
Modelagem BIM (Arquitetura) | Documentação Técnica | Compatibilização
Softwares: Revit





