Escola Cruzeiro
Brasília – DF, Brasil
2019
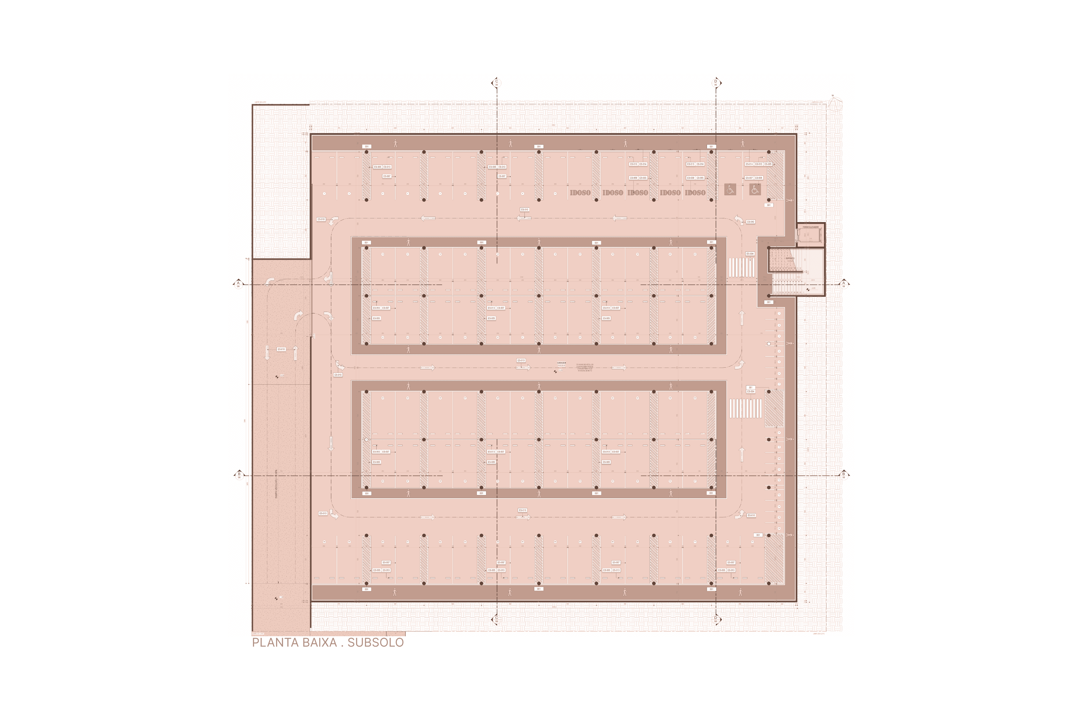
Projeto de desenvolvimento técnico, modelagem BIM e documentação de um Centro de Educação Infantil na Quadra 1501, Cruzeiro Novo, em Brasília.
A proposta arquitetônica original foi desenvolvida e detalhada em ambiente BIM, com foco em soluções construtivas racionais, acessibilidade e conformidade aos parâmetros urbanísticos do Distrito Federal.
Escopo:
Modelagem BIM (Arquitetura) | Documentação Técnica | Adequação às Normas
Softwares: Revit | AutoCAD






Escola Cruzeiro
Brasília – DF, Brasil
2019
Projeto de desenvolvimento técnico, modelagem BIM e documentação de um Centro de Educação Infantil na Quadra 1501, Cruzeiro Novo, em Brasília.
A proposta arquitetônica original foi desenvolvida e detalhada em ambiente BIM, com foco em soluções construtivas racionais, acessibilidade e conformidade aos parâmetros urbanísticos do Distrito Federal.
Escopo:
Modelagem BIM (Arquitetura) | Documentação Técnica | Adequação às Normas
Softwares: Revit | AutoCAD






Escola Cruzeiro
Brasília – DF, Brasil
2019
Projeto de desenvolvimento técnico, modelagem BIM e documentação de um Centro de Educação Infantil na Quadra 1501, Cruzeiro Novo, em Brasília.
A proposta arquitetônica original foi desenvolvida e detalhada em ambiente BIM, com foco em soluções construtivas racionais, acessibilidade e conformidade aos parâmetros urbanísticos do Distrito Federal.
Escopo:
Modelagem BIM (Arquitetura) | Documentação Técnica | Adequação às Normas
Softwares: Revit | AutoCAD





